MoodByRMA
  • Home
  • About
  • Projects
  • Services
  • Contact
MoodByRMA
  • Home
  • About
  • Projects
  • Services
  • Contact

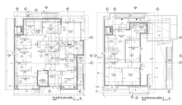
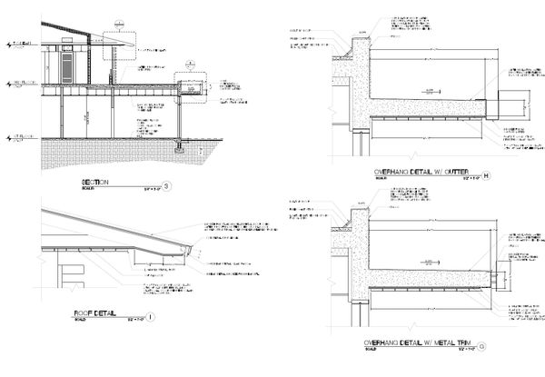
Designs That Define: Mac Building

Copyright © 2025 MoodbyRMA - All Rights Reserved.

Powered by

This website uses cookies.

We use cookies to analyze website traffic and optimize your website experience. By accepting our use of cookies, your data will be aggregated with all other user data.

Accept